Mailinglist Archives:
Infrared
Panorama
Photo-3D
Tech-3D
Sell-3D
MF3D

Notice
This mailinglist archive is frozen since May 2001, i.e. it will stay online but will not be updated.
<-- Date Index --> <-- Thread Index --> [Author Index]

P3D It doesn't add up


  • From: Paul Talbot <ptww@xxxxxxxxx>
  • Subject: P3D It doesn't add up
  • Date: Tue, 26 Oct 1999 00:05:10 -0600

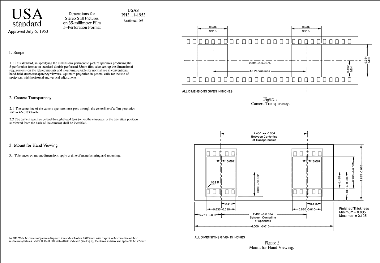
Is it my imagination, or is the ANSI specification for
5 perf stereo slide mounts internally inconsistent?
http://rmm3d.com/supplies/ansi.gif

The width is specified as 4 inches maximum* with an
allowable deviation of -0.01 inches.  Looking at the
specified dimensions within the mount, I get:

   .761" left edge of mount to centerline of left aperture
  2.436" centerline of left aperture to centerline of right aperture
   .761" centerline of right aperture to right edge of mount
 ------
  3.958" total
  4.000" mount width per spec
 ------
   .042" missing width ???

*We sometimes hear the width specified as 101mm, which
seems to be about 3.976 inches, clearly short of the
minimum 3.99 allowed by the spec.  But using 101mm
does get the spec to within .018 of being internally
consistent.

All insight anyone can provide will be much appreciated.

Paul Talbot